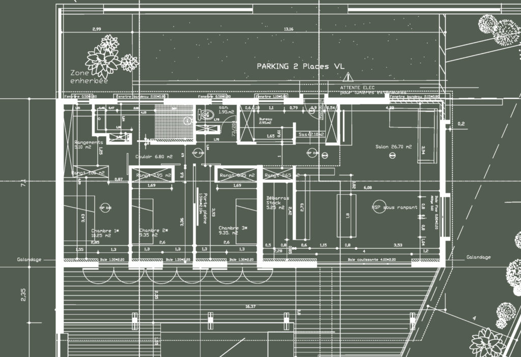
Maison « longère »
- Maître d'ouvrage : Client privé
- Projet : Construction d'une maison individuelle et d'un Atelier créatif
- Lieu : La Réunion, Éperon, Saint-Gilles les Hauts
- Année : 2012
- Mission : Maîtrise d’œuvre complète :
- Choix de la parcelle sur les principes Fengshui/géobiologie
- Permis de construire
- Aménagement intérieur
- Choix des matériaux, couleurs et décoration
- Plan de la cuisine en bois exotiques - Quelques chiffres : - 150 m2 de surface habitable
- 2 chambres enfants de 11 m2
- 1 chambre parentale et dressing de 20 m2
- 20 m2 d'Atelier créatif en Rez de Jardin bas
- 1 pièce à vivre de 50 m2 ouverte par une baie vitrés de 4 m de largeur











